專業停車設備

驊達的用心‧讓您最放心

品質保證 服務第一 專業態度

產品介紹

- 機械停車 -


本公司各項機械停車設備規格介紹。

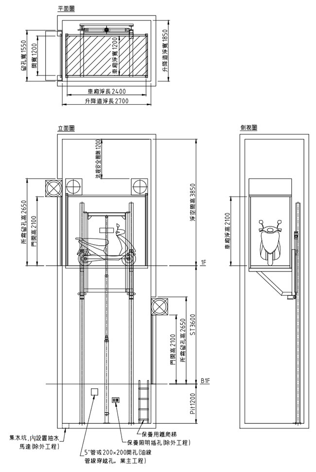
機車

客貨兩用昇降機

12HD-ME


取代機車道路徑,增加機車停車位空間。

1. 配合現時建築法令規定施作。

2. 取代坡道,機車升降機直上直下動作。

3. 增加地下室車位設置。

4. 採微電腦自動控制,感應敏捷,且維修保養容易。

5. 具有低速啟動,高速運轉,低速停止等圓滑動作,使車廂上昇或下降時平穩無聲,使停車成為一種享受。

back to top