專業停車設備

驊達的用心‧讓您最放心

品質保證 服務第一 專業態度

產品介紹

- 機械停車 -


本公司各項機械停車設備規格介紹。

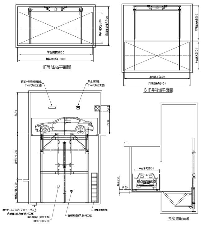
汽車升降機

汽車昇降機附橫移盤

CEC(CNS-13350-7)


取代車道路徑,節省停車位之浪費。

1. 本產品適合土木建築不理想之出入口位置,利用左右橫移平移原理,將上底盤橫移至適當出口位置 。

2. 可配合地下室出口位置不同,依施工場地情形做不同搭配,不同出庫車出口。

back to top