專業停車設備

驊達的用心‧讓您最放心

品質保證 服務第一 專業態度

產品介紹

- 機械停車 -


本公司各項機械停車設備規格介紹。

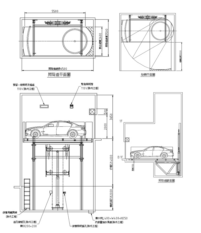
汽車升降機

汽車昇降機附旋轉

HD-CET(CNS-13350-7)


取代車道路徑,節省停車位之浪費。

1. 本產品適合土木建築不理想之出入口位置,利用旋轉原理,將上底盤迴旋以便換出入車之角度位置。

2. 可配合昇降機母盤,依施工場地情形做不同搭配,例如附橫移轉盤,附中心轉盤或各種不同角度停車位。

back to top